PEARL PLAZA & BUS SHELTER
Chelsea, MA | 2021-2023
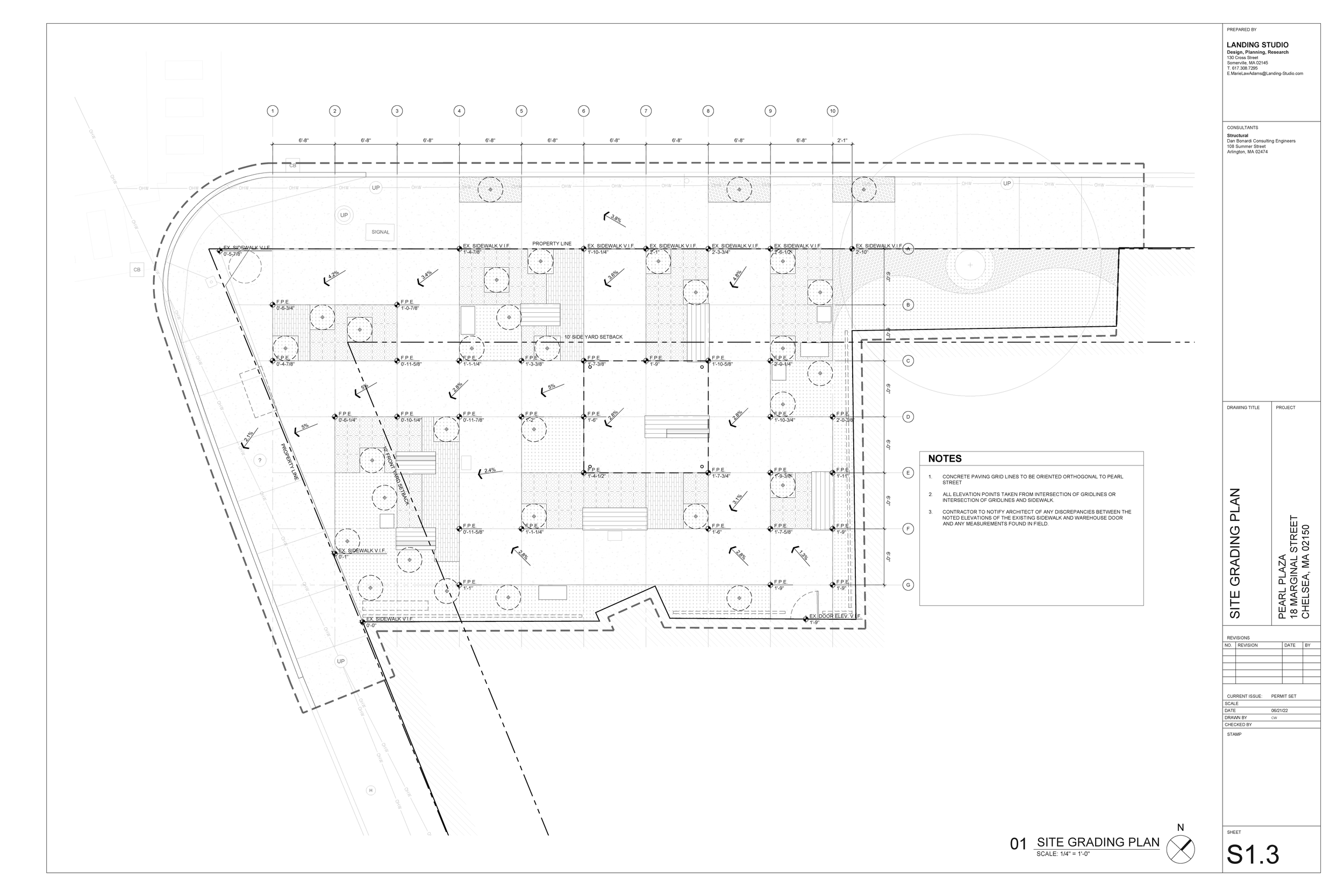
A paved corner lot was being used for repair shop parking, alongside a busy bus stop connection for many workers. We worked with the owner to develop a new heat resilient design for a tree-filled plaza and shaded bus shelter with seating.
